
3 Bedrooms
2 Bathrooms
2 Car Garage

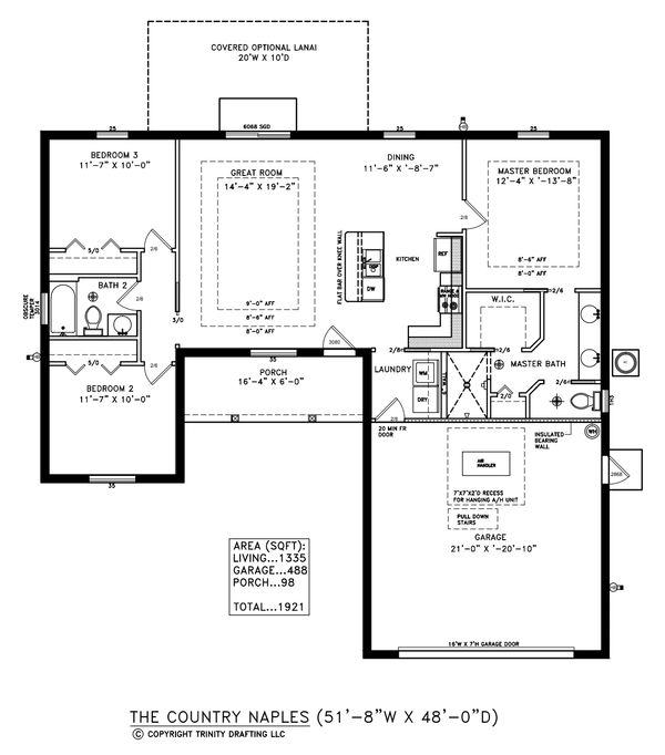
The Country Naples is a well-designed 3-bedroom, 2-bath custom home that offers comfortable living with a smart, open layout. Featuring a spacious great room, open kitchen and dining area, and an optional covered lanai, this plan is ideal for families or homeowners looking for flexibility and everyday functionality.
The private owner’s suite includes a walk-in closet and en-suite bath, while two additional bedrooms and a full bath are thoughtfully positioned for privacy and convenience. A full-size garage and covered front porch add practicality and curb appeal.
Part of our Cottage Collection, the Country Naples can be personalized through our Series finish packages, allowing homeowners to customize finishes and features while maintaining a streamlined, transparent build process. Built by My Florida Home Builder, this home is a strong option for those seeking a high-quality custom home in Okeechobee or the Treasure Coast with efficient use of space and lasting value.
Disclosure: Floor plans, elevations, renderings, and illustrations shown are artistic representations and are for conceptual and marketing purposes only. Images and plans may depict optional features, upgrades, furnishings, or design elements not included in the base price. Actual layouts, dimensions, materials, and specifications may vary. All floor plans are used in partnership with Trinity Drafting LLC and remain the intellectual property of their respective owners. My Florida Home Builder reserves the right to modify plans, features, and specifications to meet engineering, permitting, and construction requirements.
Copyright © 2024 My Florida Home Builder - All Rights Reserved.
We use cookies to analyze website traffic and optimize your website experience. By accepting our use of cookies, your data will be aggregated with all other user data.