
2 Bedrooms
2 Bathrooms
2 Car Garage

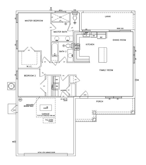
The Crestview is a well-balanced 2-bedroom, 2-bath custom home offering expanded living space and a comfortable, open layout designed for Florida living. With a spacious family room, open kitchen and dining area, and both a front porch and covered lanai, this plan is ideal for homeowners who want room to relax and entertain.
The private owner’s suite features a walk-in closet and en-suite bath, while the secondary bedroom and full bath provide flexibility for guests or a home office. A dedicated laundry room and full-size garage add everyday convenience and storage.
Part of our Cottage Collection, the Crestview can be personalized through our Series finish packages, allowing homeowners to customize finishes and features while maintaining a streamlined, transparent build process. Built by My Florida Home Builder, the Crestview is a great option for those seeking a high-quality custom home in Okeechobee or the Treasure Coast with a little extra space to live comfortably.
Disclosure: Floor plans, elevations, renderings, and illustrations shown are artistic representations and are for conceptual and marketing purposes only. Images and plans may depict optional features, upgrades, furnishings, or design elements not included in the base price. Actual layouts, dimensions, materials, and specifications may vary. All floor plans are used in partnership with Trinity Drafting LLC and remain the intellectual property of their respective owners. My Florida Home Builder reserves the right to modify plans, features, and specifications to meet engineering, permitting, and construction requirements.
Copyright © 2024 My Florida Home Builder - All Rights Reserved.
We use cookies to analyze website traffic and optimize your website experience. By accepting our use of cookies, your data will be aggregated with all other user data.