
4 Bedrooms
3 Bathrooms
2 Car Garage

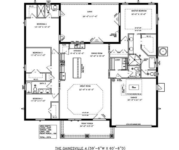
The 4-bedroom, 3-bath Gainesville is part of our Country Estates Collection, offering expanded living space, an oversized central great room, and a spacious kitchen with island seating and walk-in pantry. The private owner’s suite includes a spa-style bath, large walk-in closet, and direct access to the extended rear lanai. A covered front porch and full two-car garage complete this estate-level design, ideal for larger homesites and buyers seeking elevated space and comfort.
This custom home is also available in a 3-bedroom option is offered as part of our Homestead Collection, providing a more streamlined footprint while maintaining the same open-concept living areas, quality construction, and functional layout.
Built by My Florida Home Builder, the Gainesville delivers flexibility across both collections—allowing homeowners to choose the space, layout, and level that best fits their needs.
Disclosure: Floor plans, elevations, renderings, and illustrations shown are artistic representations and are for conceptual and marketing purposes only. Images and plans may depict optional features, upgrades, furnishings, or design elements not included in the base price. Actual layouts, dimensions, materials, and specifications may vary. All floor plans are used in partnership with Trinity Drafting LLC and remain the intellectual property of their respective owners. My Florida Home Builder reserves the right to modify plans, features, and specifications to meet engineering, permitting, and construction requirements.
Copyright © 2024 My Florida Home Builder - All Rights Reserved.
We use cookies to analyze website traffic and optimize your website experience. By accepting our use of cookies, your data will be aggregated with all other user data.