
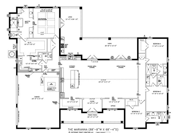
4 Bedrooms
3-1/2 Bathrooms
3 Car Garage

The Marianna is a spacious ranch-style estate home featuring 4 bedrooms, 3.5 baths, and a dedicated office, designed for homeowners who want luxury, flow, and everyday convenience on a single level. The expansive great room, kitchen, and dining areas are unified under cathedral ceilings, creating a dramatic yet functional central living space ideal for entertaining.
The private owner’s suite serves as a true retreat and includes a spa-inspired bath, oversized walk-in closet, and direct access to the laundry room—a highly sought-after feature for daily convenience. Three additional bedrooms are positioned on the opposite side of the home, including a guest suite with private bath access. A large rear lanai, wide covered front porch, and oversized garage with storage complete this premier estate layout.
Built by My Florida Home Builder, the Marianna stands at the top of our Country Estates Collection, offering refined ranch-style living, thoughtful design, and exceptional long-term value for larger homesites.
Disclosure: Floor plans, elevations, renderings, and illustrations shown are artistic representations and are for conceptual and marketing purposes only. Images and plans may depict optional features, upgrades, furnishings, or design elements not included in the base price. Actual layouts, dimensions, materials, and specifications may vary. All floor plans are used in partnership with Trinity Drafting LLC and remain the intellectual property of their respective owners. My Florida Home Builder reserves the right to modify plans, features, and specifications to meet engineering, permitting, and construction requirements.
Copyright © 2024 My Florida Home Builder - All Rights Reserved.
We use cookies to analyze website traffic and optimize your website experience. By accepting our use of cookies, your data will be aggregated with all other user data.