
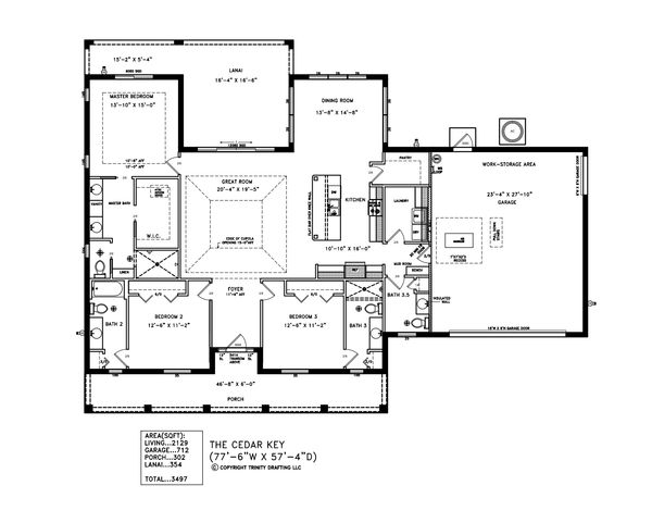
3 Bedrooms
3-1/2 Bathrooms
3 Car Garage

The Cedar Key is a distinctive Key West–style custom home offered as part of our Homestead Collection, designed for homeowners who want architectural character paired with expansive, functional living space. A large central great room anchors the home and flows seamlessly into the kitchen and dining area, making it ideal for entertaining and relaxed Florida living.
This plan features a signature architectural cupola, with optional Clearview glass panels that bring in natural light and enhance the home’s coastal design. The owner’s suite is privately positioned with a walk-in closet and spa-style bath, while secondary bedrooms are thoughtfully arranged for comfort and convenience.
An expansive covered lanai and wide front porch reinforce the Key West aesthetic, while the oversized garage with dedicated work and storage space adds exceptional functionality. Built by My Florida Home Builder, the Cedar Key is an excellent option for those seeking a custom home in Okeechobee or the Treasure Coast with coastal style, flexibility, and long-term value.
Disclosure: Floor plans, elevations, renderings, and illustrations shown are artistic representations and are for conceptual and marketing purposes only. Images and plans may depict optional features, upgrades, furnishings, or design elements not included in the base price. Actual layouts, dimensions, materials, and specifications may vary. All floor plans are used in partnership with Trinity Drafting LLC and remain the intellectual property of their respective owners. My Florida Home Builder reserves the right to modify plans, features, and specifications to meet engineering, permitting, and construction requirements.
Copyright © 2024 My Florida Home Builder - All Rights Reserved.
We use cookies to analyze website traffic and optimize your website experience. By accepting our use of cookies, your data will be aggregated with all other user data.