
4 Bedrooms
2 Bathrooms
2 Car Garage

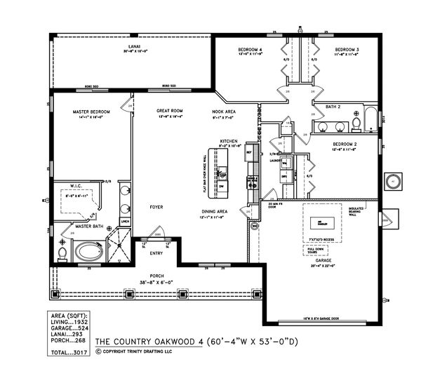
The Country Oakwood is a flexible 3- or 4-bedroom custom home with the option to add a third bathroom, making it ideal for families who want room to grow without sacrificing comfort or flow. A large central great room connects seamlessly to the kitchen, dining area, and breakfast nook, creating an open layout well-suited for everyday living and entertaining.
Homeowners can choose a three-bedroom layout with expanded living space or a four-bedroom configuration for larger households, with the added option of a third bath for enhanced convenience. A wide covered front porch and oversized rear lanai extend the living space outdoors, while the attached two-car garage provides ample storage and functionality.
Built by My Florida Home Builder, the Country Oakwood is a strong option for those seeking a custom home in Okeechobee or the Treasure Coast that offers space, adaptability, and long-term value.
Disclosure: Floor plans, elevations, renderings, and illustrations shown are artistic representations and are for conceptual and marketing purposes only. Images and plans may depict optional features, upgrades, furnishings, or design elements not included in the base price. Actual layouts, dimensions, materials, and specifications may vary. All floor plans are used in partnership with Trinity Drafting LLC and remain the intellectual property of their respective owners. My Florida Home Builder reserves the right to modify plans, features, and specifications to meet engineering, permitting, and construction requirements.
Copyright © 2024 My Florida Home Builder - All Rights Reserved.
We use cookies to analyze website traffic and optimize your website experience. By accepting our use of cookies, your data will be aggregated with all other user data.