
4 Bedrooms
2-1/2 Bathrooms
2 Car Garage

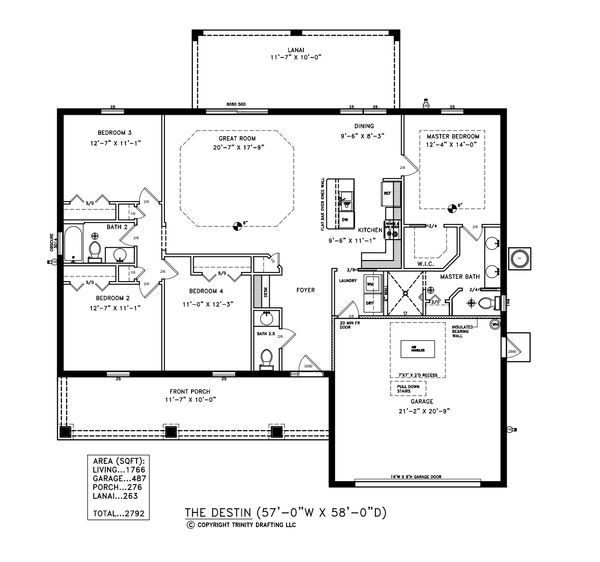
The Destin is a spacious 4-bedroom, 2.5-bath custom home designed for homeowners who want room to spread out without losing flow or functionality. A large central great room anchors the home and connects to the kitchen and dining area, creating an ideal layout for family living and entertaining.
The owner’s suite is thoughtfully positioned with a walk-in closet and private bath, while three additional bedrooms and two baths provide flexibility for guests, children, or a home office. A wide covered front porch and rear lanai enhance indoor-outdoor living, and the attached two-car garage offers ample storage and everyday convenience.
Built by My Florida Home Builder and part of Our Homestead Collection, the Destin can be personalized through our Series finish packages, making it an excellent choice for those seeking a custom home in Okeechobee or the Treasure Coast with generous space, comfort, and long-term value.
Disclosure: Floor plans, elevations, renderings, and illustrations shown are artistic representations and are for conceptual and marketing purposes only. Images and plans may depict optional features, upgrades, furnishings, or design elements not included in the base price. Actual layouts, dimensions, materials, and specifications may vary. All floor plans are used in partnership with Trinity Drafting LLC and remain the intellectual property of their respective owners. My Florida Home Builder reserves the right to modify plans, features, and specifications to meet engineering, permitting, and construction requirements.
Copyright © 2024 My Florida Home Builder - All Rights Reserved.
We use cookies to analyze website traffic and optimize your website experience. By accepting our use of cookies, your data will be aggregated with all other user data.